2-к. квартира, 44 м²
Продажа квартир на любой вкус и бюджет
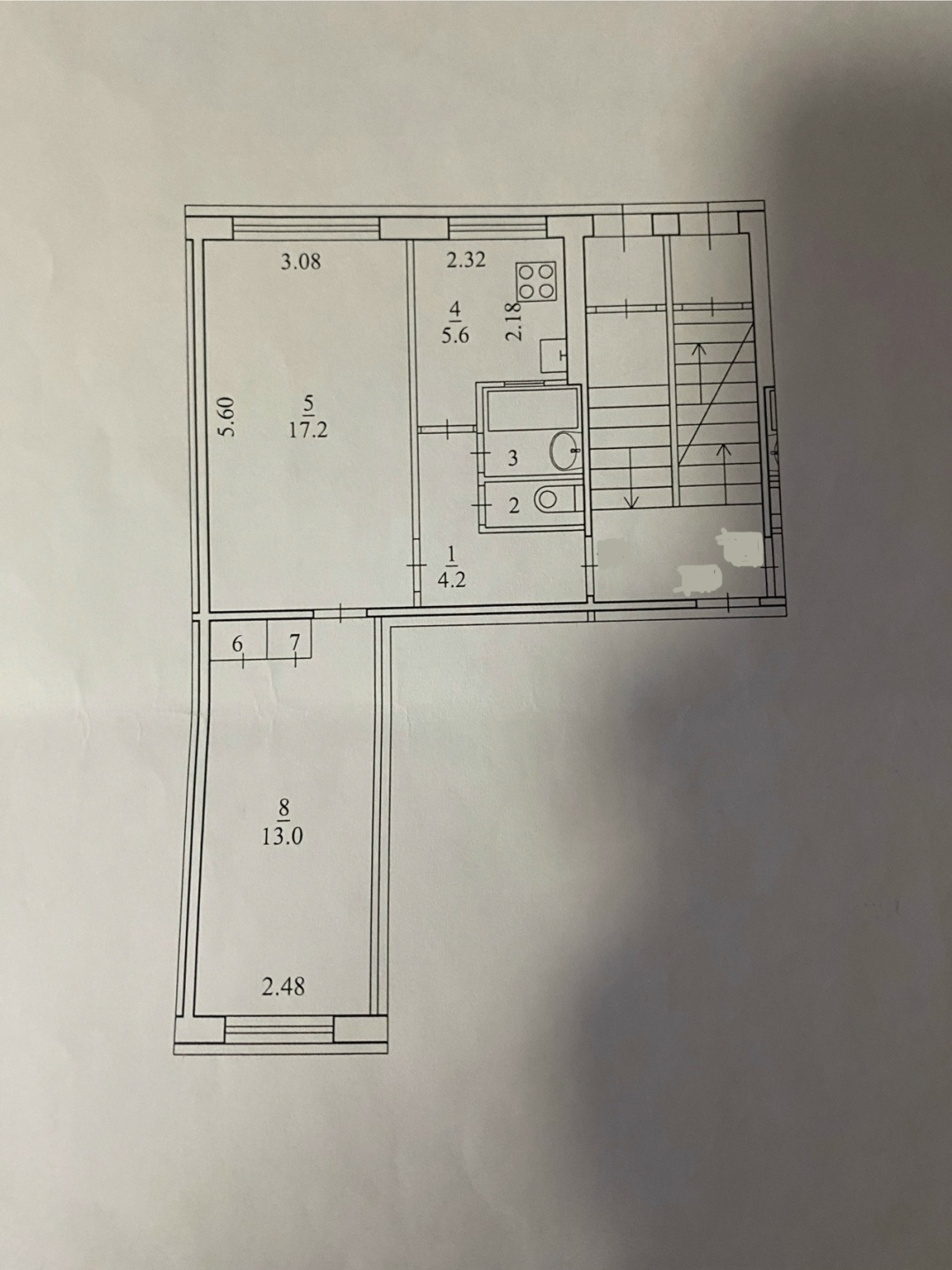
На продаже 2х-ком. квартира панельном доме по адресу Магистральная 41.
Квартира на комфортном первом этаже. Подъезд чистый, без посторонних запахов.

Сама квартира в обычном состоянии, все окна пластиковые.
Менялись стояки на пластиковые.

Квартира на прямой продаже, освобождена.
Звоните, более подробно на показе или по телефону.
Ссылка на объявление: https://софия29.рф/sale/saleapartments/179739
2 390 000
Иван


Архангельская область, Архангельск, улица Магистральная, д 41

Информация об объекте

Количество комнат2-к квартира Этаж1 Площадь44 Жилая площадь30.2 Площадь кухни5.6 Раздельных санузлов1 ОкнаДвор + улица РемонтОтсутствует

Информация о доме

Тип домаПанельный Этажей в доме5