1-к. квартира, 31.4 м²
Продажа квартир на любой вкус и бюджет
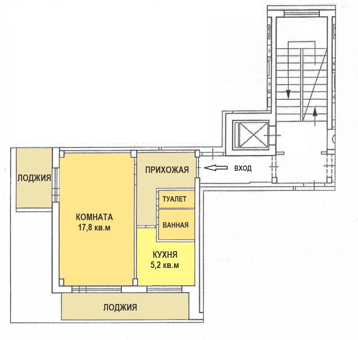
Продается светлая и уютная 1-комнатная квартира площадью 31,4 кв.м в районе с развитой инфраструктурой.
Комфортный 3-й этаж, дополнительное пространство добавляют 2 застекленные лоджии.
Прямая продажа, 1 взрослый собственник, никто не прописан.
Квартира освобождена и готова к въезду или ремонту по вашему проекту!
Ссылка на объявление: https://софия29.рф/sale/saleapartments/177965
3 500 000
Зайцева Ольга Вадимовна


Архангельская область, Архангельск, улица Полины Осипенко, д 5, к2

Информация об объекте

Количество комнат1-к квартира Этаж3 Площадь31.4 Жилая площадь17.8 Площадь кухни5.2 Лоджия2 Раздельных санузлов1 ОкнаДвор РемонтКосметический

Информация о доме

Год постройки1980 Тип домаПанельный Этажей в доме9 Лифты пассажирские1